- Woonoppervlakte
- Circa 71 m²
- Perceeloppervlakte
- Circa 79 m²
- Bouwjaar
- Gebouwd in 1908
- Aantal kamers
- 4 kamers (3 slaapkamers)
Bent u op zoek naar een fijne en keurig nette woning op een ideale locatie? Dan is deze aantrekkelijke eindwoning aan de Oranjestraat 18 precies wat u zoekt. Met het centrum en het NS-station van Alphen aan den Rijn op korte loopafstand, diverse voorzieningen om de hoek en uitstekende uitvalswegen in de buurt, combineert deze woning gemak, comfort en een heerlijke leefomgeving.
Met een woonoppervlakte van 71 m² en drie volwaardige slaapkamers is dit huis niet alleen perfect voor starters, maar ook zeer geschikt voor doorstromers die op zoek zijn naar een compacte, goed ingedeelde en sfeervolle woning.
Locatie & omgeving
In slechts enkele minuten loopt u naar winkelcentrum De Aarhof en de gezellige Van Mandersloostraat, waar u terecht kunt voor dagelijkse boodschappen, horeca en diverse andere voorzieningen. Ook de bereikbaarheid is uitstekend: via de N11 en N207 rijdt u binnen circa 35 minuten naar steden als Leiden, Utrecht, Amsterdam, Rotterdam en Den Haag.
Indeling
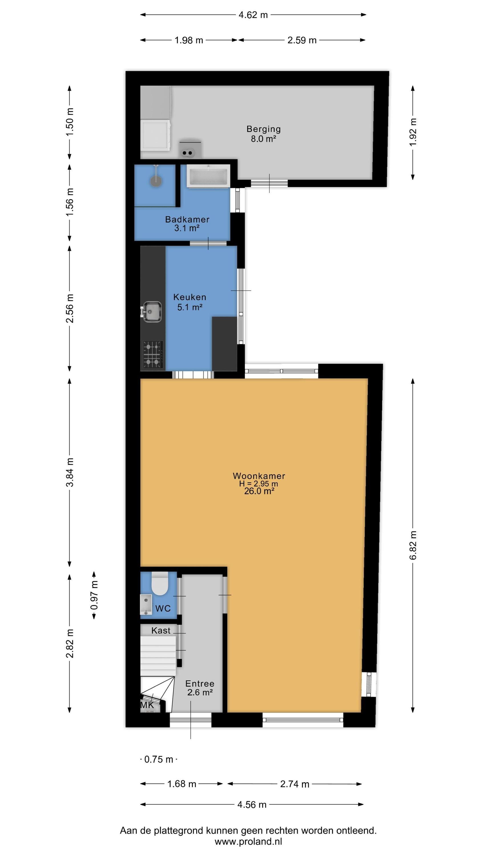
Begane grond
U komt binnen in de hal met toegang tot de meterkast, het toilet en de trapopgang. De doorzon-woonkamer biedt een lichte en prettige leefruimte met een fijne verbinding naar de open keuken.
De moderne keuken is compleet uitgerust met een kookplaat met afzuigkap, combi-oven/magnetron, koelkast en vaatwasser, ideaal voor wie van koken en gemak houdt.
Op de begane grond vindt u daarnaast de recent (2020) vernieuwde badkamer met douche en wastafel en een ruime berging voor extra opslag met aansluiting/afvoer voor wasmachine/droger.
Eerste verdieping
De royale overloop geeft toegang tot drie comfortabele slaapkamers. Perfect voor een gezin, hobbykamer of thuiswerkplek – de indelingsmogelijkheden zijn eindeloos.
Buiten
Achter de woning ligt een sfeervol plaatsje waar u heerlijk beschut kunt genieten van de zon, een drankje of een gezellige barbecue.
Pluspunten op een rij:
- 8 zonnepanelen, geïsoleerde vloer en uitgerust met dubbel- en HR-glas in de gehele woning
- Nieuwe meterkast (2021)
- Rolluiken aan de voorzijde (slaapkamers)
- Parkeervergunning slechts € 40,- per jaar
- Drie slaapkamers
- Rustige, kindvriendelijke buurt
- Perfecte ligging, op steenworp afstand van het centrum en het NS-station
Kortom: deze instapklare eindwoning is een ideale kans voor wie comfortabel wil wonen op een toplocatie. Interesse? Plan snel een bezichtiging en ontdek zelf de sfeer en mogelijkheden van de Oranjestraat 18!
Overdracht
- Koopsom
- € 340.000 k.k.
- Status
- Verkocht
- Aanvaarding
- In overleg
Bouw
- Object type
- Eengezinswoning, eindwoning
- Soort bouw
- Bestaande bouw
- Bouwjaar
- 1908
- Soort dak
- Zadeldak
Oppervlakte en inhoud
- Woonoppervlakte
- 71 m²
- Perceeloppervlakte
- 79 m²
- Inhoud
- 261 m³
- Externe bergruimte
- 9 m²
Indeling
- Aantal kamers
- 4 kamers (3 slaapkamers)
- Aantal badkamers
- 1 badkamer
- Badkamervoorzieningen
- Douche, wastafel
- Aantal woonlagen
- 2 woonlagen
- Voorzieningen
- Rolluiken, zonnepanelen, natuurlijke ventilatie
Energie
- Energielabel
- F
- Energielabel registratie
- 24-11-2025
- Isolatie
- Dubbel glas, hr glas
- Verwarming
- Cv-ketel
- Warm water
- Cv-ketel
- Cv ketel
- Remeha gas gestookt (eigendom)
Buitenruimte
- Ligging
- In woonwijk
- Tuin
- Plaats
Garage
- Soort garage
- Geen garage
Parkeergelegenheid
- Soort parkeergelegenheid
- Betaald parkeren, parkeervergunningen
Energieverbruik in Alphen aan den Rijn
Energielabel deze woning
Energielabel F
Publicatie energielabel: 24-11-2025
Stroomverbruik per jaar
(Gemiddelde hoekwoning in Alphen aan den Rijn)
Gasverbruik per jaar
(Gemiddelde hoekwoning in Alphen aan den Rijn)
* Cijfers zijn afkomstig van het CBS en bedoeld als indicatie en kunnen verschillen voor deze woning
Indicatie hypotheeklasten
Eigen inleg:
Spaargeld / overwaarde
Rente:
Laagste 10-jaars rente
Laagste 10-jaars rente
2,98% - Centraal Beheer Groen... - NHG
3,25% - Centraal Beheer Groen... - 80%
Laagste 20-jaars rente
3,29% - Centraal Beheer Groen... - NHG
3,52% - Centraal Beheer Groen... - 80%
Laagste 30-jaars rente
3,41% - Centraal Beheer Groen... - NHG
3,74% - Centraal Beheer Groen... - 80%
Hypotheek:
Bruto maandlasten: € 0 p/m
Netto maandlasten: € 0 p/m
Hoe berekenen we dit?
Het rentepercentage is gebaseerd op de laagste 10 jaars vaste rente voor één hypotheekdeel. De vermelde rente (2.98% met NHG) is gecontroleerd op 06-01-2026. Deze berekening is gebaseerd op een annuïteitenhypotheek die volledig wordt afgelost, waarbij de maandlasten gedurende de gehele looptijd gelijk blijven. De werkelijke rente en netto maandlasten kunnen variëren, afhankelijk van uw persoonlijke situatie en de hypotheekverstrekker. Raadpleeg een financieel adviseur voor een nauwkeurige berekening en advies. Aan deze berekening kunnen geen rechten worden ontleend; het dient enkel als indicatie.
Documentatie
Kadastrale kaart
Leefomgeving
Plattegronden PDF
BAG uittreksel
WOZ waarderapport
Aanslag-gemeentebelastingen-oranjestraat-18
Eigendomsbewijs
Lijst van zaken
Vragenlijst
Energielabel
Brochure
Bekijk onze website
Bezichtiging
Bod uitbrengen
Waardebepaling
Zoekopdracht
Alles downloaden
Zonnegrenzen bekijken
Op de kaart
Inwoners in Alphen aan den Rijn
Cijfers voor postcodegebied 2405
- Totaal aantal inwoners
- 114182 inwoners
- Mannen
- 49%
- Vrouwen
- 51%
Inwoners in Alphen aan den Rijn
Cijfers voor postcodegebied 2405
- tot 15 jaar
- 17%
- 15 tot 25 jaar
- 11%
- 25 tot 35 jaar
- 25%
- 45 tot 65 jaar
- 29%
- 65 en ouder
- 18%
Huishoudens in Alphen aan den Rijn
Cijfers voor postcodegebied 2405
- Eenpersoons zonder kinderen
- 40%
- Meerpersoons zonder kinderen
- 29%
- Huishoudens zonder kinderen
- 69%
Huishoudens in Alphen aan den Rijn
Cijfers voor postcodegebied 2405
- Huishoudens met één kind
- 9%
- Huishoudens met meerdere kinderen
- 22%
- Huishoudens met kinderen
- 31%
Woningen in Alphen aan den Rijn
Cijfers voor postcodegebied 2405
- Woningen voor 1945
- 30%
- Woningen tussen 1945 en 1965
- 14%
- Woningen tussen 1965 en 1975
- 14%
- Woningen tussen 1975 en 1985
- 10%
- Woningen tussen 1985 en 1995
- 15%
Woningen in Alphen aan den Rijn
Cijfers voor postcodegebied 2405
- Woningen tussen 1995 en 2005
- 8%
- Woningen tussen 2005 en 2015
- 4%
- Woningen na 2015
- 5%
- Huurwoningen
- 40%
- Koopwoningen
- 60%
Overige in Alphen aan den Rijn
Cijfers voor postcodegebied 2405
- Gemiddelde WOZ waarde
- € 248.000,-
- Personen onder de 65 met uitkering
- Niet beschikbaar
Overige in Alphen aan den Rijn
Cijfers voor postcodegebied 2405
- Adressen per km²
- 2845
- Stedelijkheid (schaal 1 op 5)
- 100%
Korte feiten over Alphen aan den Rijn
Alphen aan den Rijn is de hoofdplaats van de gelijknamige gemeente Alphen aan den Rijn. De plaats is gelegen in de Nederlandse provincie Zuid-Holland, aan de rivieren Oude Rijn en Gouwe in het veenweidegebied Groene Hart tussen de grote steden Amsterdam, Utrecht, Rotterdam, Den Haag en Leiden. Een inwoner van Alphen aan den Rijn wordt Alphenaar genoemd.
Indien u vragen heeft of u wilt een bezichtiging inplannen, dan kunt u gebruik maken van het formulier hiernaast. Er zal daarna op korte termijn contact met u worden opgenomen.
Euromarkt 3
2408 BA, Alphen aan den Rijn
0172 - 234 406 info@houtmandevogel.nl www.houtmandevogel.nlContact opnemen
Over Houtman & de Vogel
Bent u van plan om uw woning te verkopen? Zoek niet verder! Bij Houtman & de Vogel profiteert u van ervaren makelaars met uitgebreide kennis van de lokale woningmarkt. Ons doel is om de best mogelijke verkoopprijs en voorwaarden voor onze klanten te realiseren. Benieuwd hoe we dat doen? Maak een afspraak en ontdek wat wij voor u kunnen betekenen.
Ons kantoor is gevestigd op de Euromarkt 3 in Alphen aan den Rijn. Het heeft een professionele uitstraling en is voorzien van opvallende tv-schermen in de etalage waar uw woning wordt gepresenteerd. U kunt ons eenvoudig bereiken en er is gratis parkeergelegenheid voor de deur!
Houtman & de Vogel staat bekend om zijn actieve en resultaatgerichte aanpak, gekenmerkt door een no-nonsense mentaliteit. Wij zijn 6 dagen per week en 16 uur per dag bereikbaar. U kunt bij ons terecht voor bezichtigingen of een (gratis) waardebepaling, niet alleen tijdens kantooruren, maar ook in de avonduren en op zaterdag.
Nieuwste reviews
-
Aïdaplein 249
Wat me opviel was de vaart die erin kwam, zonder dat ik het gevoel had dat het een haastklus was. Zowel de aankoop van mijn nieuwe apparteme...
-
Anita Sloot
Fijne mensen om mee samen te werken. Alles gaat in goed overleg. Ik zou ze aanraden voor verkoop of koop van je woning.
-
anna
Beoordeeld met een 1